Импульсное реле управления освещением в nanoCAD BIM Электро 25.0 - это работает?
Ответы
-
И вам здравствуйте!
А что понимается под фразой "не смог найти как выполнить подключение"?
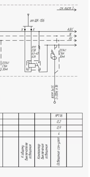
То, что на рисунке - это функционал для учета в базе с целью корректного составления спецификаций.Если требуется принципиальная схема (не путаем с однолинейной) - то таких продуктов у Нанософт нет.
0 -
Не совсем понял ответ.
nanoCAD BIM Электро разве не создает принципиальные схемы?
Спасибо
0 -
т.е., то что RIO-1 это реле, и оно может быть установлено в фидер как любой другой ПЗА, и оно вероятно есть в БД от EKF (даже если нет, то создать его не трудно) никак не проясняет ситуацию?
0 -
Ну тут то-же не всё так как воспринято.
Во первых показана структура РУ, вопрос конечно для чего реле в комплектацию добавлено а не непосредственно в фидер, вероятно из-за этого и непонимание.
Во вторых термин «однолинейная» не нормативный, в ГОСТ 2.701 такого нет и NCE не создаёт никакие «однолинейные» схемы, а исключительно «электрические принципиальные» (опять-же см. ГОСТ 2.701), «однолинейным» может быть исполнение (изображение) схемы «электрической принципиальной» (см. п.6.2.1 ГОСТ 21.608-2021, п.6.1.7 ГОСТ 21.613-2014) и будет ли схема в «однолинейном» изображении это решает пользователь, создаёт шаблон в требуемом виде схемы.0 -
В комплектацию добавил.
Как добавить в ЭМ, чтобы сгенерить принципиальную схему? В шаблонах нет картинок реле, контакторов.. или я плохо искал
0 -
понял - NCE не может создавать схемы типы этой
у меня наполнение всех электрических щитов в здании (этажные щиты напольного исполнения, высотой 2 метра каждый) содержат автоматику 1/4 наполнения щита (астрономические и импульсные реле, контакторы всяких видов освещения, рекламы, пожарной защиты, байпасы) - очень надеялся на NCE, т.к. NC уже куплен был ранее для других проектов
0
Разделы
- Все разделы
- 73 Общие вопросы
- 60 Работа nanoCAD в ОС Linux
- 473 Платформа nanoCAD
- 23 nanoCAD GeoniCS
- 91 nanoCAD BIM Строительство
- 84 nanoCAD Механика PRO
- 68 nanoCAD BIM Электро
- 11 nanoCAD BIM Вентиляция
- 15 nanoCAD BIM ВК
- 3 nanoCAD BIM Отопление
- 10 nanoCAD BIM СКС
- 72 nanoCAD BIM ОПС
- 3 nanoCAD Стройплощадка
- 4 nanoCAD Металлоконструкции
- 2 nanoCAD Конструкции PS
- 10 TDMS Фарватер
- 1 Облака точек
- 1 nanoCAD GeoSeries
- 1 NSR Specification
- Учебным заведениям и учащимся
- 8 nano360